欢迎您来到无锡旺特福机床辅机有限公司的企业网站
 | 加入收藏 | 设为主页 | 主页导航  
企业邮局
 
 
  磁辊分离器
  螺旋式排屑机
  霍夫曼过滤机
  50链板式排屑机
  50刮板式排屑机
  80链板式排屑机
  滚筒式排屑机
  复合式排屑机
  螺旋机
  WTFC系列磁性滚筒分离器
  WTFZ系列纸带过滤器
  真空负压式过滤系统
  磁棒过滤机
  磁辊+纸带+中心出水
  小集中排屑
  龙门排屑机+护板
  集中排屑
  集中过滤系统
  集中供液(污液提升)
  单机小集成
  鼓式过滤器
  中心出水(磁辊纸带+线性过滤)
  中心出水(涡流分离器)
  油水分离器
  集中排屑系统
  磁辊过滤水箱
  滚筒排屑+中心出水+恒温
  反冲洗滚筒+涡分+中心出水
  涡分过滤水箱
  磁辊+纸带+油冷恒温
  单机集成
 
 
产品中心 PRODUCT
 
80链板式排屑机

产品特点
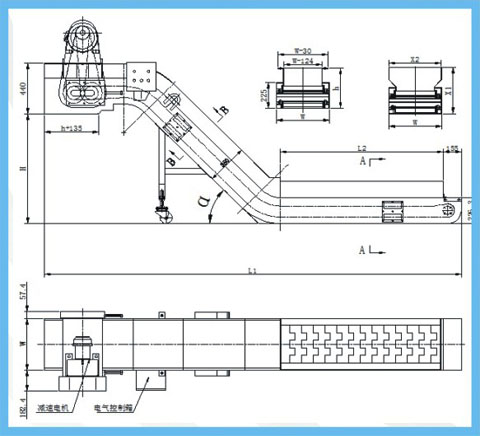
80链板式排屑器输送长度在30米以内,排屑量在0 6~1 5m3/h。主要用于收集和输送各种卷状、团状、条状、块状切屑。广泛应用于各类数控机床加工中心和柔性生产线等自动化程度较高的机床。也可作为冲压、冷镦机床小型零件的输送机。也是组合机床冷却液处理系统的主要排屑功能部件。该设备工作运转平稳、无噪音并配有机械过载保护和电器过载发讯保护装置,起到改善操作环境,减轻劳动强度,提高整机自动化程度的作用。可用于切屑量大的机床或车间集中排屑系统。

外形图

各部位尺寸

参数

减速电机

   0.4KW 4P AC 220/380V  a=45°,60°L≤15M  

0.75KW 4P AC 220/380 a=45°,60°L≤20m

1.5KW 4P AC 220/380V  a=45°,60°L≤30M

链条

C2082HP 节距50.8

运转速度

0.75KW时  3.5m/min[50HZ],4.2m/min[60hz]

排屑量

0.75kw a=45°,w=350 0.85m³/h[50HZ]

安全装置

扭矩限制器+接近开关

切屑要求

长切屑(50mm)以上

选配装置

电器控制箱

冷却液回收装置(可以把附在切屑上的冷却液高校回收使用)

上一页:50刮板式排屑机
下一页:滚筒式排屑机
    
 
版权所有 ® 2013 无锡旺特福机床辅机有限公司 ALL RIGHT RESERVED.版权所有 未经允许 不得转载
地址:无锡新吴区鸿山街道锡协路208号9幢 电话:0510-88522008 传真:0510-88522009
邮箱:sales@wtfjcfj.com.com 网址: www.wtfjcfj.com
无锡网络公司:君通科技
《中国电信与信息服务业务经营许可证》编号
苏ICP备13023920号-1